السيف
للإستشارات الهندسية
نصمم بشغف .. نخدم بفخر.. ننقل حلمك من الخيال الى الحقيقة
Follow us
Our Instagram

Our services - خــدمــاتنـــا
نقدم منظومة هندسية متكاملة تحت سقف واحد، تبدأ من التصميم المعماري والداخلي بلمسات عصرية وتقنيات المنازل الذكية، مروراً بإنهاء كافة الإجراءات الرسمية من اعتماد مخططات وترخيص وتقنين المباني. نضمن لكم جودة التنفيذ وراحة البال عبر إشراف هندسي كامل ومتابعة دقيقة للمواقع، مع تقديم حلول مبتكرة تحول التحديات إلى إبداع
تصميم معماري وإنشائي
نحول رؤيتكم إلى واقع ملموس بتصاميم هندسية توازن بدقة بين الجمال الوظيفي والمتانة الإنشائية
تصاميم المنازل الذكية
اعتماد مخططات
تقنين المبانى
إشراف هندسي
حلول هندسية مبتكرة
فن وعلم تحسين المساحات الداخلية للمبنى لتحقيق بيئة أكثر صحية وجمالية ووظيفية للشاغلين. يشمل اختيار الألوان، الأثاث، الإضاءة، وتخطيط الفراغات.
تخطيط وتجهيز المنزل بأنظمة تقنية متكاملة للتحكم الآلي والمركزي في الإضاءة، التكييف، الأمان، والترفيه. الهدف هو توفير الراحة، الكفاءة في استهلاك الطاقة والأمان المعزز
عملية المراجعة الرسمية والموافقة على المخططات الهندسية النهائية (المعمارية والإنشائية) من قبل الجهات الحكومية والبلدية المختصة قبل بدء التنفيذ.
استصدار الموافقات الرسمية المطلوبة من السلطات للتقنين تصحيح وضع المباني القائمة التي تم إنشاؤها دون ترخيص أو بمخالفة له، لجعلها متوافقة مع القانون
التواجد الدوري والميداني في موقع البناء لمراقبة تقدم سير العمل، حل المشكلات الفنية الطارئة، والتأكد من التزام المقاولين بالجدول الزمني ومعايير الجودة المحددة في العقود
تقديم أفكار وتصاميم غير تقليدية أو تطبيق تقنيات حديثة في البناء والتصميم. الهدف هو تحسين الكفاءة، تقليل التكاليف، تسريع التنفيذ، أو تحقيق متطلبات وظيفية أو جمالية فريدة للمشروع
تصــمــيم داخـــلى
































MEET OUR TEAM
A COLLECTIVE, THAT MAKES DREAMS COME TRUE
Eng - Khalid BenSelm
CEO
Rami Emad
Architectural Building Engineer
our team is our greatest strength. We bring together highly skilled professionals, engineers, and designers who are dedicated to delivering precise, innovative, and reliable solutions. With a commitment to excellence and attention to detail, our team ensures every project meets the highest standards of quality and client satisfaction.
Rehab Elnour
Architectural Building Engineer
Mawaheb Mohamed
Structural Design
Our Team
Salwa Ibrahem
Accountant
Ahmed Khater
Multimedia Specialist
Abd Elrahman Sami
Designer
Salma Ahmed
Site Engineer
Nermeen Hassan
Architectural Building Engineer
Management
Mona Almenhaly
G.M
Rahma Ahmed
Architectural Building Engineer
Sara Abd Elrahman
Interior Designe
Wakaar Ahmed
Technical support
Naseem Khan
Technical support
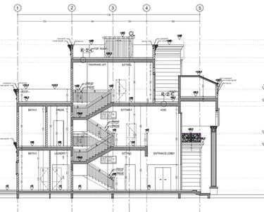
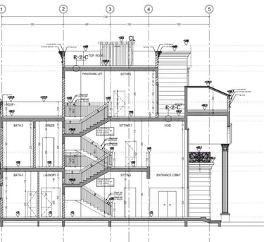
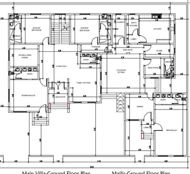
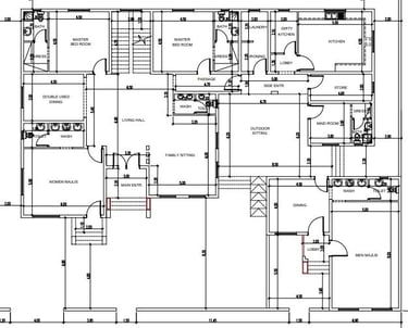
آخر أعمالنا












تصاميم جذابة وحديثة تابعة لقوانين بلدية أبو ظبي
PARTNERS-الشركاء
نفخر بشراكاتنا الاستراتيجية مع جهات رائدة في إمارة أبوظبي، حيث تجمعنا رؤية مشتركة نحو تطوير بيئة عمرانية واقتصادية مستدامة. تشمل شبكة شركائنا:
بلدية أبوظبي: دعم متواصل لتسهيل الإجراءات وتعزيز جودة المشاريع العمرانية.
أبوظبي الأول: شراكة مالية راسخة تدعم التوسع وتوفر حلولاً تمويلية مبتكرة.
بنك أبو ظبي التجاري: شراكة مالية راسخة تدعم التوسع وتوفر حلولاً تمويلية مبتكرة.
شركة الدار العقارية: شريك تطوير استراتيجي يساهم في بناء مجتمعات عمرانية متكاملة.
هذه الشراكات تعكس التزامنا بالتميز وتعزيز قيمة مشاريعنا وخدماتنا في إمارة أبوظبي.








We are proud of our strategic partnerships with leading entities in Abu Dhabi, built on a shared vision of sustainable urban and economic development. Our key partners include:
Abu Dhabi Municipality – Supporting streamlined processes and elevating project quality.
First Abu Dhabi Bank (FAB) – Providing strong financial backing and innovative financing solutions.
ADCB - Providing strong financial backing and innovative financing solutions.
Aldar Properties – A strategic development partner contributing to the creation of integrated and modern communities.
These partnerships reflect our commitment to excellence and our dedication to delivering high-value services and projects across Abu Dhabi.
Get in touch
Address
Nishan Street - Riyadh City - Riyadh City 21 - Abu Dhabi
Contacts
0565375515
CONTACT US
If you're interested in hearing more about the way we work, have a business proposal, or are interested in making a purchase, we'd love to hear from you.

















